产品功能
宇通牌供气消防车采用宇通新能源卡车二类底盘改制,由厢体、电气系统、供气系统、升降照明系统等组成,用于火灾现场提供空气呼吸支持的消防车辆,主要用于为消防员或其他救援人员提供清洁的空气,确保他们在有毒气体、烟雾或缺氧环境中安全作业。

外形(mm)
宇通牌供气消防车采用宇通新能源卡车二类底盘改制,由厢体、电气系统、供气系统、升降照明系统等组成,用于火灾现场提供空气呼吸支持的消防车辆,主要用于为消防员或其他救援人员提供清洁的空气,确保他们在有毒气体、烟雾或缺氧环境中安全作业。
宇通牌供气消防车在浓烟或有毒气体环境中为消防员提供呼吸支持。化学品泄漏,在有毒化学品泄漏事故中,确保救援人员的安全。密闭空间救援,在地下室、隧道等密闭空间中提供空气支持。工业事故,在工业事故中为救援人员提供呼吸保护。
| 车型 | 供气消防车 |
|---|---|
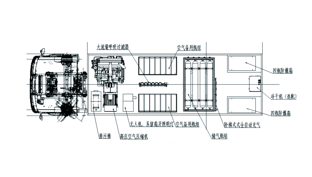
| 功能特点 | 高压呼吸空气压缩机、除菌过滤器、空气过滤系统、防爆充气箱、储气系统、阶梯式全自动充气系统、冷冻式干燥机、控制系统、系留无人机系统 |
| 总质量(kg) | 18000 |
| 底盘类型 | 宇通新能源重卡底盘ZKH5182XLC |
| 车辆尺寸(mm) | 10000*2520*2915 |
| 驱动形式 | 4x2 |
| 额定/峰值功率(KW) | 220/350 |
*特别声明:
因车辆更新与网络展示存在转化期,页面图文参数可能与实车存在差异,页面图文内容不作为实际订车依据,具体车型及技术参数以确定的实际车辆配置为准,意向购买者请及时联系宇通销售人员确认,宇通保留图片参数更改及最终解释权。
